Vacuum Stations

On this page more_vert
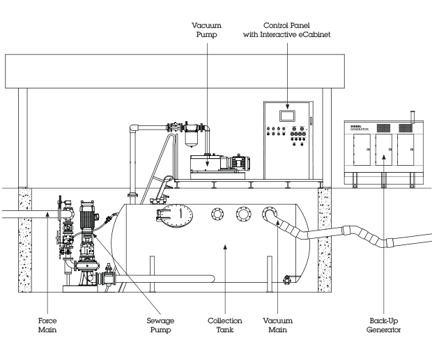
The vacuum station is the heart of an Airvac vacuum sewer system. We offer custom-engineered and prefabricated options to suit different project specifications.

Custom-Engineered Stations:
With an engineered custom vacuum station, Airvac provides all the internal components on a skid(s) which are housed in a building or other structure that is custom designed by an engineering firm.

  • Equipment is typically housed in a 2-story building
  • Vacuum Pumps & Control Panel on ground floor
  • Sewage Pumps & the Collection Tank in the basement 

Prefabricated Vacuum Station Buildings:

  • Fully assembled prefabricated building and station option.
  • Wiring, HVAC installation, and testing completed prior to arrival.
  • Reduces onsite engineering and construction time and costs.
  • Designed to meet all local codes, regardless of project size.
  • Customized solutions to meet specific needs and requirements.
  • Reliable, efficient, and cost-effective vacuum sewer system.
  • Delivered on time and within budget.

Discover Better.®

We provide free cost estimates & system layouts.
Free educational seminars and webinars are available
for potential or existing customers.

Call us at:

1-800-AIRVAC9

vertical_align_top